TASECO GIẢI PHÓNG – DỰ ÁN TASECO LAND
Taseco 1283 Giải Phóng là dự án tổ hợp thương mại dịch vụ và căn hộ cao cấp nổi bật tại khu vực phía Nam Hà Nội, được phát triển bởi Công ty Cổ phần Đầu tư Bất động sản Taseco (Taseco Land) – thương hiệu uy tín với nhiều dự án chất lượng trên thị trường. Tọa lạc tại số 1283 đường Giải Phóng, phường Hoàng Liệt, quận Hoàng Mai, dự án sở hữu vị trí chiến lược trên trục giao thông huyết mạch kết nối trung tâm thành phố với các quận phía Nam và khu vực cửa ngõ Thủ đô.

Dự án Taseco Giải Phóng có quy mô 3.648m², được quy hoạch đồng bộ gồm một tòa tháp căn hộ cao 27 tầng nổi và 3 tầng hầm hiện đại, đáp ứng đầy đủ nhu cầu sinh hoạt, kinh doanh và đỗ xe cho cư dân. Với mật độ xây dựng hợp lý, dự án chú trọng tối ưu không gian sống, đảm bảo sự thông thoáng, riêng tư và tiện nghi cho cộng đồng cư dân tinh hoa. Thiết kế tổng thể mang phong cách hiện đại, sang trọng, tạo nên dấu ấn kiến trúc nổi bật trên tuyến đường Giải Phóng.
Thông tin tổng quan dự án Taseco Giải Phóng
- Tên dự án: Taseco Giải Phóng
- Vị trí dự án: 1283 đường Giải Phóng, phường Hoàng Liệt, quận Hoàng Mai, thành phố Hà Nội
- Chủ đầu tư: Công ty Cổ phần Đầu tư Bất động sản Taseco (Taseco Land)
- Tư vấn thiết kế: Tổng Công ty tư vấn xây dựng Việt Nam – VNCC
- Đơn vị thi công: Công ty Cổ phần Đầu tư và Xây dựng số 4 – ICON4
- Diện tích đất dự án: 3.648m2
- Mật độ xây dựng: 42%
- Loại hình sản phẩm: Căn hộ 1 phòng ngủ, căn hộ 2 phòng ngủ, căn hộ 3 phòng ngủ
- Quy mô dự án: 1 tòa căn hộ cao 27 tầng và 3 tầng hầm
- Hình thức sở hữu: Sở hữu lâu dài.
- Hotline tư vấn: 0919 686 686
Điểm nhấn của Taseco 1283 Giải Phóng nằm ở hệ thống tiện ích nội khu được đầu tư bài bản, hướng đến chuẩn sống cao cấp. Cư dân được tận hưởng không gian sống khép kín với khu thương mại dịch vụ, sảnh đón sang trọng, khu sinh hoạt chung, an ninh nhiều lớp và các tiện ích hỗ trợ cuộc sống hiện đại. Mỗi chi tiết trong dự án đều được Taseco Land chăm chút kỹ lưỡng, phản ánh triết lý phát triển lấy chất lượng và trải nghiệm cư dân làm trung tâm.

Không chỉ là nơi an cư lý tưởng, Taseco Giải Phóng còn được đánh giá là sản phẩm bất động sản có tiềm năng đầu tư hấp dẫn. Vị trí trung tâm quận Hoàng Mai, hạ tầng khu vực ngày càng hoàn thiện cùng nhu cầu nhà ở cao cấp gia tăng giúp dự án sở hữu dư địa tăng giá bền vững trong tương lai. Với sự bảo chứng từ chủ đầu tư Taseco Land, Taseco 1283 Giải Phóng được kỳ vọng sẽ thiết lập chuẩn mực sống mới, trở thành biểu tượng cho phong cách sống hiện đại và thành đạt tại phía Nam Hà Nội.
Vị trí dự án Taseco Giải Phóng
Vị trí dự án Taseco Giải Phóng được đánh giá là một trong những lợi thế nổi bật, góp phần tạo nên giá trị khác biệt cho tổ hợp căn hộ cao cấp Taseco 1283 Giải Phóng trên thị trường bất động sản Hà Nội. Dự án tọa lạc tại số 1283 đường Giải Phóng, phường Hoàng Liệt, quận Hoàng Mai – trục giao thông huyết mạch kết nối khu vực trung tâm với cửa ngõ phía Nam Thủ đô. Đặc biệt, dự án nằm đối diện trực diện hồ Linh Đàm, hồ điều hòa lớn bậc nhất Hà Nội, mang lại tầm nhìn khoáng đạt, không gian sống xanh mát và bầu không khí trong lành hiếm có giữa lòng đô thị.
Sở hữu “tọa độ vàng” còn sót lại trên tuyến Giải Phóng, Taseco Giải Phóng thừa hưởng hệ thống hạ tầng giao thông đồng bộ và khả năng kết nối liên vùng vượt trội. Từ dự án, cư dân dễ dàng di chuyển đến các tuyến đường trọng điểm như Vành đai 2, Vành đai 3, cao tốc Pháp Vân – Cầu Giẽ, thuận tiện đi các tỉnh phía Nam và khu vực nội đô. Bên cạnh đó, vị trí nằm giữa hai bến xe lớn Giáp Bát và Nước Ngầm, cùng khoảng cách chỉ 10 phút tới ga Hà Nội, giúp việc đi lại, công tác và giao thương trở nên nhanh chóng, linh hoạt.
Không chỉ thuận lợi về giao thông, chung cư Taseco 1283 Giải Phóng còn được bao quanh bởi hệ sinh thái tiện ích ngoại khu hoàn chỉnh. Khu vực lân cận tập trung nhiều cơ sở giáo dục uy tín, từ hệ thống trường phổ thông đến các trường đại học lớn như Đại học Bách Khoa Hà Nội, cùng các trường quốc tế đáp ứng nhu cầu học tập chất lượng cao. Về y tế, dự án nằm gần Bệnh viện Bạch Mai và Bệnh viện Đại học Y Hà Nội, đảm bảo khả năng chăm sóc sức khỏe toàn diện cho cư dân.
Bên cạnh đó, cư dân Taseco Giải Phóng còn dễ dàng tiếp cận các trung tâm thương mại, dịch vụ, khu vui chơi giải trí dọc tuyến Giải Phóng và khu vực lân cận. Đặc biệt, lợi thế đối diện hồ Linh Đàm và gần công viên Yên Sở mang đến không gian sinh hoạt ngoài trời lý tưởng, cân bằng hài hòa giữa nhịp sống hiện đại và thiên nhiên xanh mát. Với vị trí đắc địa hiếm có, Taseco Giải Phóng không chỉ là nơi an cư lý tưởng mà còn là tài sản đầu tư bền vững trong dài hạn.
Tiện ích dự án Taseco Land 1283 Giải Phóng có gì ?
Tiện ích dự án Taseco Giải Phóng được định vị theo chuẩn sống cao cấp “All-in-One”, mang đến một không gian an cư trọn vẹn, nơi mọi nhu cầu sinh hoạt, làm việc, thư giãn và giải trí đều được đáp ứng ngay trong nội khu. Không đơn thuần là một tổ hợp căn hộ, Taseco 1283 Giải Phóng được Taseco Land phát triển như một “thành phố thu nhỏ” hiện đại giữa lòng quận Hoàng Mai, nơi cư dân có thể tận hưởng phong cách sống tiện nghi, riêng tư và đẳng cấp mỗi ngày.
Điểm nổi bật của tiện ích Taseco Giải Phóng nằm ở sự đa tầng và liên hoàn, được quy hoạch khoa học từ khối đế thương mại đến các tầng sinh hoạt cộng đồng và không gian thư giãn trên cao. Ngay tại tầng thấp, hệ thống trung tâm thương mại, nhà hàng, café, dịch vụ thời trang và làm đẹp tạo nên nhịp sống sôi động, đáp ứng trọn vẹn nhu cầu mua sắm, ẩm thực và giao lưu của cư dân mà không cần di chuyển xa. Khu nhà trẻ hiện đại được bố trí ngay trong dự án giúp các gia đình trẻ an tâm chăm sóc và giáo dục con cái trong môi trường an toàn.
Không gian chăm sóc sức khỏe và tái tạo năng lượng được đầu tư bài bản với bể bơi bốn mùa, phòng gym – fitness, yoga, spa cao cấp, mang đến trải nghiệm nghỉ dưỡng chuẩn 5 sao ngay tại nơi ở. Các khu sinh hoạt cộng đồng, phòng lounge sang trọng và khu BBQ ngoài trời là điểm hẹn lý tưởng cho những buổi gặp gỡ, gắn kết gia đình và cộng đồng cư dân văn minh.
Bên cạnh đó, Taseco Giải Phóng đặc biệt chú trọng đến yếu tố xanh và an ninh. Vườn trên mái, đường dạo bộ, sân vườn cảnh quan được bố trí hài hòa, tạo không gian thư giãn thoáng đãng giữa đô thị đông đúc. Hệ thống ba tầng hầm đỗ xe rộng rãi, thang máy tốc độ cao cùng an ninh ba lớp vận hành 24/7 đảm bảo sự an toàn và thuận tiện tối đa trong sinh hoạt hàng ngày.
Với hệ tiện ích phong phú, đồng bộ và được quản lý chuyên nghiệp, Taseco Land Giải Phóng không chỉ kiến tạo một nơi ở, mà còn định hình chuẩn sống mới tại khu vực Giải Phóng, xứng đáng là lựa chọn an cư và đầu tư bền vững cho những cư dân theo đuổi phong cách sống hiện đại, đẳng cấp và khác biệt.
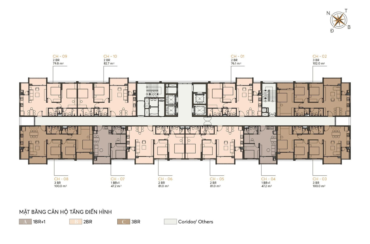
Mặt bằng & thiết kế căn hộ dự án Taseco Land Giải Phóng
Dự án Taseco Land Giải Phóng được quy hoạch trên quỹ đất rộng khoảng 3.648m², sở hữu quy mô 1 tòa tháp cao 27 tầng nổi và 3 tầng hầm hiện đại. Ngay từ khâu lập mặt bằng tổng thể, chủ đầu tư Taseco Land đã đặt trọng tâm vào sự khoa học, tối ưu không gian và gia tăng trải nghiệm sống cho cư dân đô thị. Toàn bộ dự án được bố trí hợp lý giữa khối căn hộ, khu tiện ích và không gian xanh, tạo nên một tổng thể hài hòa, sang trọng và bền vững theo thời gian.
Mặt bằng chung cư Taseco Giải Phóng được thiết kế linh hoạt với đa dạng loại hình căn hộ từ 1 phòng ngủ + 1, 2 phòng ngủ đến 3 phòng ngủ, đáp ứng trọn vẹn nhu cầu an cư của nhiều nhóm khách hàng khác nhau – từ người độc thân thành đạt, gia đình trẻ đến các gia đình đa thế hệ sinh sống lâu dài. Mỗi căn hộ đều được tính toán kỹ lưỡng về công năng, giao thông nội bộ và khả năng đón sáng – đón gió tự nhiên, mang lại cảm giác thông thoáng và dễ chịu trong từng không gian.

Về phong cách kiến trúc, Taseco 1283 Giải Phóng mang hơi thở châu Âu hiện đại kết hợp tinh thần thanh lịch đặc trưng của Hà Nội. Các đường nét thiết kế tối giản nhưng tinh tế, sử dụng vật liệu cao cấp và thân thiện môi trường, hướng tới xu hướng kiến trúc xanh đương đại. Điểm nổi bật của dự án chính là khả năng tối ưu hóa mặt bằng sử dụng: tận dụng triệt để các “góc chết”, kết hợp nội thất đa năng và bố trí không gian mở giúp căn hộ luôn rộng rãi hơn diện tích thực.
Diện tích căn hộ Taseco Giải Phóng được phân bổ hợp lý:
- Căn hộ 1 phòng ngủ + 1: từ 50 – 57 m², phù hợp cho người trẻ hoặc nhà đầu tư.
- Căn hộ 2 phòng ngủ: khoảng 76 – 77 m², lựa chọn lý tưởng cho gia đình trẻ.
- Căn hộ 3 phòng ngủ: từ 100 – 107 m², đáp ứng nhu cầu sinh hoạt thoải mái của gia đình đông thành viên.
Thiết kế căn hộ Taseco Giải Phóng đặc biệt chú trọng đến sự tiện nghi và linh hoạt trong sinh hoạt hàng ngày. Ban công rộng mở giúp kết nối không gian trong nhà với thiên nhiên bên ngoài. Phòng ngủ được thiết kế vuông vắn, dễ bố trí nội thất. Khu bếp lớn liên thông logia giúp hạn chế mùi, tăng tính riêng tư và sạch sẽ. Logia chính rộng rãi là nơi lý tưởng để trồng cây xanh hoặc tạo góc thư giãn sau mỗi ngày làm việc.
Nội thất căn hộ Taseco Lakeview Giải Phóng
Nội thất căn hộ Taseco Lakeview Giải Phóng được định hình theo phong cách sang trọng – tinh tế – bền vững, phản ánh rõ gu thẩm mỹ của giới thành đạt hiện đại. Từng chi tiết thiết kế đều hướng tới sự hài hòa giữa con người và thiên nhiên, thể hiện qua bố cục không gian mở, đường nét thanh thoát cùng bảng màu trung tính trang nhã nhưng giàu sức sống. Các vật liệu tự nhiên cao cấp được lựa chọn kỹ lưỡng, tạo nên tổng thể nội thất vừa ấm cúng, vừa đẳng cấp theo tiêu chuẩn quốc tế.
Điểm nhấn nổi bật của căn hộ Taseco 1283 Giải Phóng nằm ở hệ kính hộp 2 lớp phủ Low-E cao cấp, cho phép mở rộng tầm nhìn panorama khoáng đạt, đồng thời tối ưu khả năng cách âm – cách nhiệt, tiết kiệm năng lượng hiệu quả. Cấu trúc kính hai lớp với lớp không khí ở giữa giúp hạn chế hấp thụ nhiệt, phản xạ ánh sáng thông minh, mang lại không gian sống yên tĩnh và dễ chịu giữa trung tâm đô thị sôi động.
Danh mục nội thất bàn giao tại chung cư Taseco Giải Phóng được đánh giá vượt chuẩn cao cấp, với sự góp mặt của nhiều thương hiệu danh tiếng toàn cầu. Sàn gỗ Quick-Step nhập khẩu từ Bỉ mang đến vẻ đẹp sang trọng và độ bền vượt trội. Hệ thống chiếu sáng sử dụng đèn nhập khẩu Anh Quốc, kết hợp trần cao từ 2,7 – 2,85m giúp không gian luôn thông thoáng, ngập tràn ánh sáng tự nhiên.
Khu bếp được đầu tư đồng bộ với tủ bếp trên – dưới, chậu rửa Franke, bếp nấu Bosch, phụ kiện Blum, máy rửa bát, lò vi sóng và thùng rác nhập khẩu châu Âu, mang đến trải nghiệm nấu nướng tiện nghi và hiện đại. Thiết bị vệ sinh Hansgrohe, đèn sưởi Đức, điều hòa âm trần Mitsubishi, rèm cửa điều khiển bằng động cơ điện tử… tất cả tạo nên một không gian sống tiện nghi trọn vẹn.
Không chỉ chú trọng chất lượng nội thất, Taseco Lakeview Giải Phóng còn tối ưu trải nghiệm sinh hoạt với logia rộng tới 6m², mật độ căn hộ thấp và hệ thống 4 thang máy, trung bình chỉ 2 căn/thang, đảm bảo di chuyển nhanh chóng, riêng tư và đẳng cấp cho cư dân. Đây chính là lựa chọn lý tưởng cho những ai tìm kiếm một chuẩn sống tinh tế, bền vững và khác biệt tại khu vực Giải Phóng – Hà Nội.
Bảng giá bán chung cư Taseco Giải Phóng
Đang cập nhật
Chính sách bán hàng Taseco Giải Phóng
Đang cập nhật
Tiến độ xây dựng Taseco Giải Phóng
Đang cập nhật
Để biết thêm thông tin chi tiết về bảng giá bán, chính sách bán hàng, tiến độ dự án mới nhất, nhà đầu tư vui lòng liên hệ hotline để được cập nhật và tư vấn chi tiết nhất.
Để nhận thông tin cập nhật dự án Taseco Land sớm nhất vui lòng nhắn tin qua Zalo: 0375 68 6886
Tham khảo thêm các dự án của chủ đầu tư Taseco Land tại : Duantasecoland.vn


